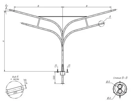
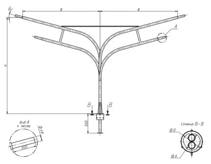
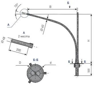
Опора парковая декоративная ОД-2-4,4-79 "Си-Си-2Т"-цл ТАНС.14.033.000
ОД-2-4,4-79 "Си-Си-2Т"-цл ТАНС.14.033.000
Арт: OE-01325
47 829 ₽
В наличии
Характеристики
СтатусВ наличии
Все характеристики
1
Под заказ: 4-5 недель
20 лет опыта и качества
Выгода для постоянных клиентов
Доставка во все города РФ
Пункты выдачи в каждом городе РФ
Гарантия
5 лет
Розница отп без выходных
Описание
Технические характеристики
Инструкции
Доставка
Оплата
Отзывы
У товара пока нет описания

































