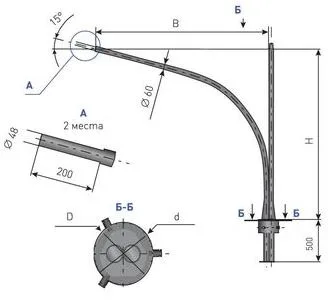
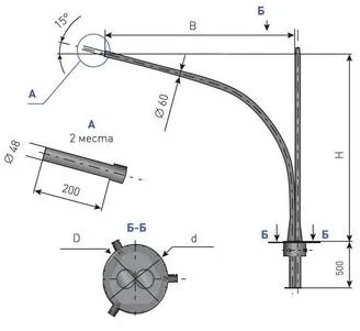
Опора прямостоечная трубчатая ТАНС.12.104.000-02 (НП-6,0/7,0-02-ц) OE OPORA ENGINEERING
ТАНС.12.104.000-02 (НП-6,0/7,0-02-ц)
ТАНС.12.104.000-02 (НП-6,0/7,0-02-ц)
Арт: OE-03064
16 097 ₽
В наличии
Характеристики
СтатусВ наличии
Все характеристики
1
Под заказ: 2-4 недели
20 лет опыта и качества
Выгода для постоянных клиентов
Доставка во все города РФ
Пункты выдачи в каждом городе РФ
Гарантия
5 лет
Розница отп без выходных
Описание
Расшифровка
Технические характеристики
Инструкции
Доставка
Оплата
Отзывы
У товара пока нет описания





















































