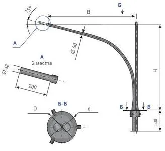
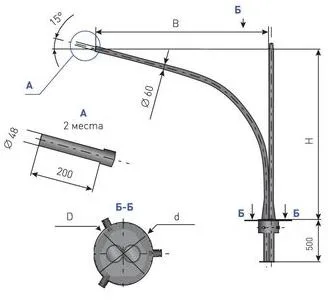
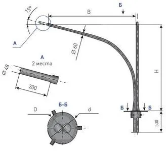
Опора декоративная парковая ТАНС.14.028.000 (ОД-5-4,2-74 "Бол-5"-лк) OE OPORA ENGINEERING
ТАНС.14.028.000 (ОД-5-4,2-74 "Бол-5"-лк)
Арт: OE-02986
68 816 ₽
В наличии
Характеристики
СтатусВ наличии
Все характеристики
1
Под заказ: 4-5 недель
20 лет опыта и качества
Выгода для постоянных клиентов
Доставка во все города РФ
Пункты выдачи в каждом городе РФ
Гарантия
5 лет
Розница отп без выходных
Описание
Технические характеристики
Инструкции
Доставка
Оплата
Отзывы
У товара пока нет описания

















































