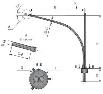
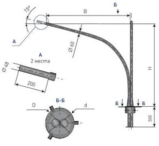
Анкерная закладная для МГФ-16 ТАНС.33.001.000 (ЗА-30/8/Д540-0,94-хц)
МГФ-16 ТАНС.33.001.000 (ЗА-30/8/Д540-0,94-хц)
Арт: OE-01371
10 257 ₽
В наличии
Характеристики
СтатусВ наличии
Все характеристики
1
Под заказ: 3-5 дней
20 лет опыта и качества
Выгода для постоянных клиентов
Доставка во все города РФ
Пункты выдачи в каждом городе РФ
Гарантия
5 лет
Розница отп без выходных
Описание
Технические характеристики
Инструкции
Доставка
Оплата
Отзывы
У товара пока нет описания

































