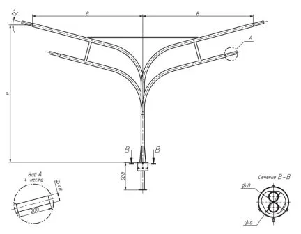
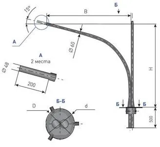
Анкерная закладная для МГФ-35 ТАНС.33.005.000 (ЗА-30/18/Д780-1,3-хц)
МГФ-35 ТАНС.33.005.000 (ЗА-30/18/Д780-1,3-хц)
Арт: OE-01370
33 444 ₽
В наличии
Характеристики
СтатусВ наличии
Все характеристики
1
Под заказ: 3-5 дней
20 лет опыта и качества
Выгода для постоянных клиентов
Доставка во все города РФ
Пункты выдачи в каждом городе РФ
Гарантия
5 лет
Розница отп без выходных
Описание
Технические характеристики
Инструкции
Доставка
Оплата
Отзывы
У товара пока нет описания

































