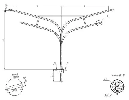
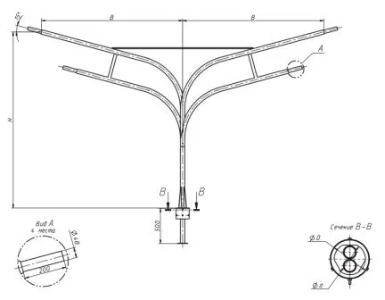
Кронштейн радиусный четырехрожковый 1.К4-2,5-2,0-/180-О2-р-ц
1.К4-2,5-2,0-/180-О2-р-ц
Арт:
28 027.65 ₽
26 693 ₽
25 358.35 ₽
СКИДКА 5%
В наличии
Характеристики
СтатусВ наличии
Все характеристики
1
Под заказ: 2-4 недели
20 лет опыта и качества
Выгода для постоянных клиентов
Доставка во все города РФ
Пункты выдачи в каждом городе РФ
Гарантия
5 лет
Розница отп без выходных
Описание
Расшифровка
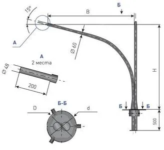
Технические характеристики
Инструкции
Доставка
Оплата
Отзывы
У товара пока нет описания





















































